Skip links

Salmontini Le Bistrot

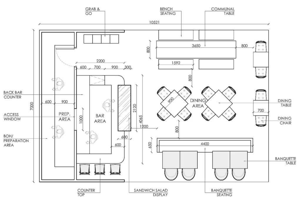
Salmontini Le Bistro new address is located in the heart of Dubai's financial center, Salmontini Le Bistro is a Mediterranean gem that transports diners to the seaside with its coastal-inspired interior. Designed within a 120-square-meter open space boasting 85 inviting seats, the bistro's ambiance is a true ode to the ocean.

The design narrative unfolds with a striking oak chevron wood floor, while travertine stone adorns the walls, infusing a touch of natural elegance. Hues of blues playfully accent the furniture, while the sushi counter facade, resembling fish scales, immerses guests in a sea of calming tones.

Overall, Salmontini Le Bistro offers a relaxed and laid-back atmosphere, effortlessly conveying a casual yet elegant dining experience.

salmontini le bistrot
salmontini le bistrot
salmontini le bistrot
salmontini le bistrot
salmontini le bistrot
salmontini le bistrot
salmontini le bistrot
This website uses cookies to improve your web experience.

Appointment

TEST

Available

Let's talk.

Embark on a remarkable journey of visual excellence and storytelling prowess. Your brand's unforgettable story starts now!