Skip links

People Club

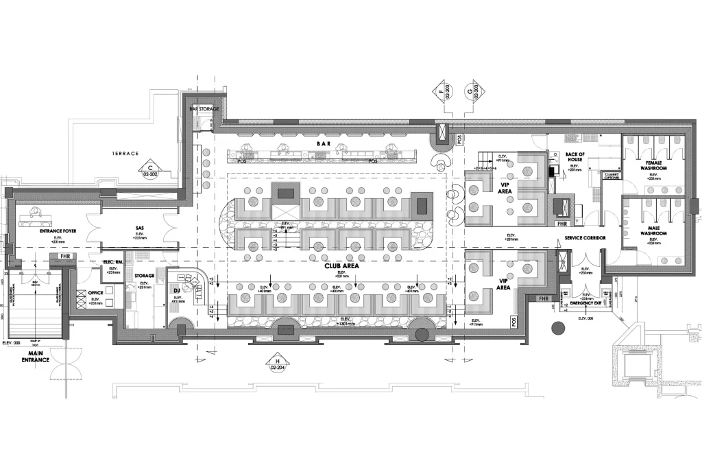
People Club is a cutting-edge fusion of technology and luxury. The interior is an immersive experience. The venue boasts state-of-the-art lighting and high-definition sound systems that elevate every beat to perfection.

Incorporating the latest in modern technology, LED screens with dynamic real-time projections and interactive displays on ceilings and walls create an ever-evolving visual spectacle. But it's not just the tech that dazzles; opulence reigns supreme here. The use of sumptuous gold leather and backlit travertine onyx elevates the club into a realm of pure luxury.

people club
people club
people club
people club
people club
people club
people club
people club
people club
people club
people club
This website uses cookies to improve your web experience.

Appointment

TEST

Available

Let's talk.

Embark on a remarkable journey of visual excellence and storytelling prowess. Your brand's unforgettable story starts now!