Skip links

Miss Tess

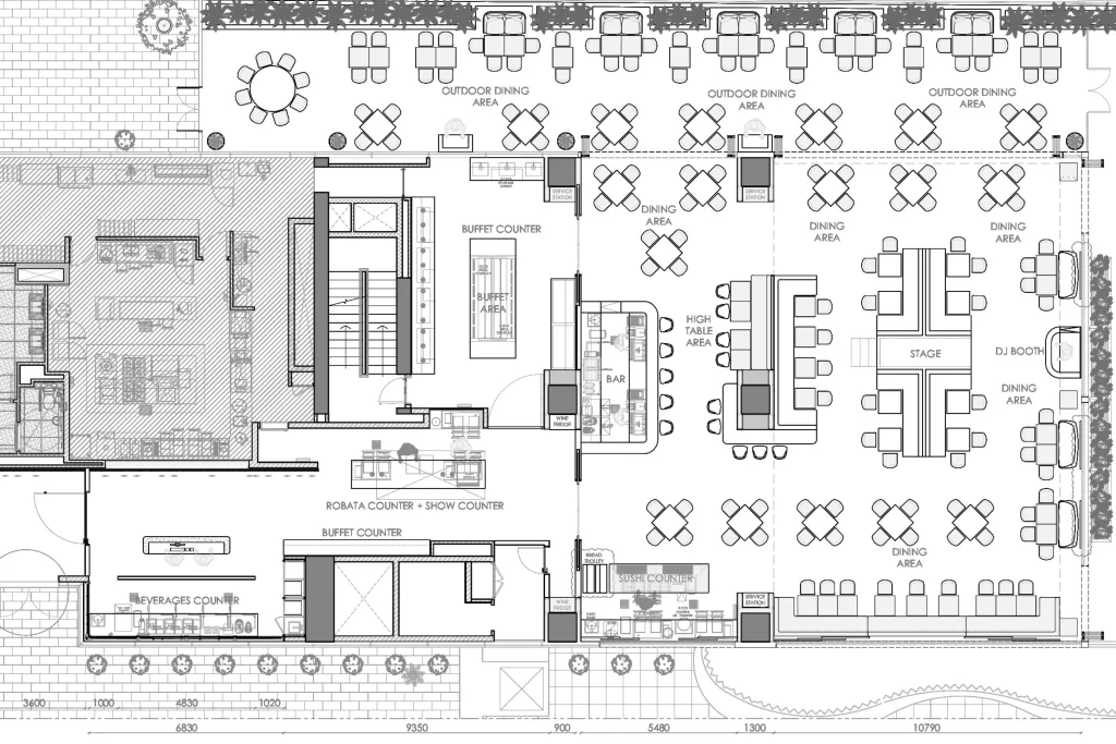
Miss Tess Restaurant and Lounge, located on the third floor of the Taj Hotel Dubai, seamlessly blends Asian elegance with modern design. Boasting a seating capacity of 225 (135 indoors, 90 outdoors), the ambiance exudes warmth and sophistication, mirroring the diverse culinary inspirations behind its creation. Vintage red finishes and solid bamboo wood grace the interior, forging tactile connections to Asian traditions.

The reception area sets the stage with extraordinary wallpaper depicting Asian mountains, while a bespoke rattan pendant light at the bar adds a touch of modernity to the cultural homage. In the dining area, walls adorned with breathtaking 3D greenery wallpaper behind bamboo wood paneling create a mesmerizing atmosphere.

The high ceiling is crowned by an oversized chandelier, featuring Vietnamese hat-shaped elements suspended over central island seats and a stage below, completing the immersive dining experience.

miss tess
miss tess
miss tess
miss tess
miss tess
miss tess
miss tess
miss tess
miss tess
miss tess
miss tess
miss tess
miss tess
This website uses cookies to improve your web experience.

Appointment

TEST

Available

Let's talk.

Embark on a remarkable journey of visual excellence and storytelling prowess. Your brand's unforgettable story starts now!